亚洲成人国产I亚洲丝袜中文I黄色网大全I天天操天天射天天添I午夜av影院I成年一级片

Products

current position:home page>Products>Measuring Instrument>Hukseflux>

CRC Series

Updated:2025-03-13

Views:2102

  • Brand: Hukseflux
  • Model:CRC
  • Description: CRC’s contain traceable thermal conductivity reference materials for calibration of Non-Steady-State Probes. There are several different CRC types. The geometry of the different types is adapted to fi
  • Feedback
  • WeChat

    QQ

    Online Service

Product Details

CRC Series: Datasheet

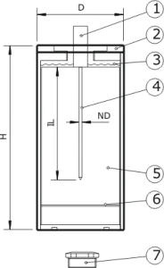
The hart of the CRC cylinders is a specially manufactured amorphous plastic reference material (5). (See Figure 1). Contrary to other plastics, this material does not have any directionally dependent thermal properties. In the plastic material a hole is drilled (4), with the approximate outer dimensions (ND Needle Diameter and IL Insertion Length) of the needle that needs to be calibrated.

The plastic material is incorporated in a metal protection casing (2). A plug (7) is provided for sealing purposes. In order to guarantee perfect contact between needle (1) and reference material (5), the metal casing is filled with a fluid, glycerol (3). An additional hole (6) is provided in order to be able to perform checks of material stability with thin needle probes. The user is recommended to send the CRC to Hukseflux for a check of material stability every 5 years.

CRC Series Specifications:

Test method ASTM D 5334-00 and D 5930-9, IEEE Std 442-1981
Temperature range 0 – 60 °C
Thermal conductivity of reference 0.2 W/mK (nominal value)
Traceability to NPL National Physical Laboratory, United Kingdom

WeChat

Customer Service QQ

Customer Hotline:

0l0-52867771
l3811111452
l7896OO5796

Technical Supports

l7896OO5796
info@dorgean.com