亚洲成人国产I亚洲丝袜中文I黄色网大全I天天操天天射天天添I午夜av影院I成年一级片

產品中心

Products

當前位置:首頁>產品中心>測量計量儀器>荷蘭Hukseflux>

CRC系列

更新時間:2025-03-13

瀏覽量:2100

  • 品牌:Hukseflux
  • 型號:CRC
  • 描述:CRC包含可追溯的熱導率參考材料,用于校準非穩態探針。有幾種不同的CRC類型。不同類型的幾何形狀適合于具有一定直徑的針。Hukseflux是非穩態探針的供應商。 非晶態塑料參考材料不具有任何方向相關...
  • 在線訂購
  • 微信咨詢

    QQ咨詢

    在線客服

產品介紹

CRC系列: 數據表

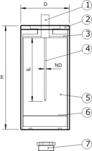
CRC圓柱體的hart是一種制造的非晶塑料參考材料(5)。(見圖1)。與其他塑料相反,這種材料不具有任何方向相關的熱性能。在塑料材料中鉆出一個孔(4),該孔具有需要校準的針頭的大致外部尺寸(ND針頭直徑和IL插入長度)。

塑料材料結合在金屬保護套(2)中。提供了一種用于密封目的的塞子(7)。為了針(1)和參考材料(5)之間的接觸,金屬外殼填充有流體甘油(3)。提供了額外的孔(6),以便能夠用細針探針進行材料穩定性的檢查。建議用戶每5年將CRC發送給Hukseflux進行一次材料穩定性檢查。

CRC系列規格:

試驗方法 ASTM D 5334-00和D 5930-9,IEEE標準442-1981
溫度范圍 0 – 60 °C
參考導熱系數 0.2 W/mK(標稱值)
可追溯性 英國NPL物理實驗室

咨詢微信客服

咨詢微信客服

QQ在線客服

客服熱線:

0I0-52867771
I3811111452
I7896005796

技術支持

I7896005796
收起

掃一掃,關注官方賬號

掃一掃,關注官方賬號

010-52867771

在線客服